Projects
Contact
Deke Angel
//// Creative Direction
Projects
Contact
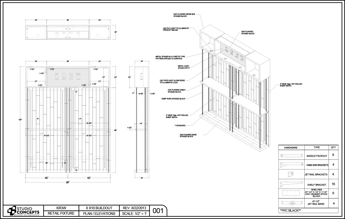
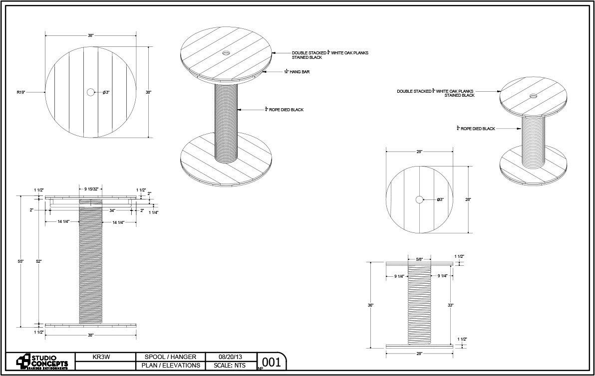
IX – KR3W Clothing – Retail Buildout
Interior retail space design for Active's Irvine Spectrum location
↑
Back to Top